Overview
Status:  Selling
Category:  Apartment
Number of floors:  5
BHK:  3
Description


Specifications:-
CONSTRUCTION:
Enhanced Structured Sabity Against Earthquake For Relevant Zone
FLOORING:
Living Rooms Dining, Wtchen And
All Bedrooms (24°24') Vitrified Tiles
KITCHEN:
When Platform Will Be Made Of
Black Granite Stone With 5.5.Sink
PLUMBING:
Concealed Plumbing With Standard Sanitaryware CP. Fitting UPVC Pipes For Water Supply, PVC Pipes For Drainage
COLOUR:
Building Finished With Standard Quality Paint Inside Birla Putty. Outside Apex Colour
GAS:
Gas Pipe Line Connection
DOORS:
Main Door Will Be Decoration And Other
Doors Are Flush Door With Stone Frame
WINDOWS:
Alldes Of Aluminum Sertions And Window Framing in Granite
ELECTRIFICATION:
oncealed Circuit Wiring Of Standard (ISI MARK) Company With Modular Switches And MCB
LIFT:
Premium Quality Lift With Safety Device In Case Of Emergency
SECURITY:-
CCTV Camera Facility
PARKING:
Ground Parking Space

#PragatiGreen#project in vapi                                                                                                                                                                                                                                                         

#2bhk flats in vapi #3bhk flats in vapi                                                                       
#Realas8
#DungraVapi
#HariaParkVapi
#ResidentialProject
#ModernLiving
#PremiumAmenities
#GreenLiving
#LuxuryHomesVapi
#RealEstateVapi
#DreamHome
#SecureLiving
#CommunityLiving
#AffordableHousingVapi
#UrbanLifestyle
#InvestmentOpportunity
#QualityInfrastructure
#VapiRealEstate
#HomeForSaleVapi
#PropertyInvestment

#RERA Approved Project In Vapi

# RERA Approved Project in dungra, haria park, vapi

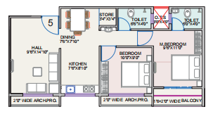
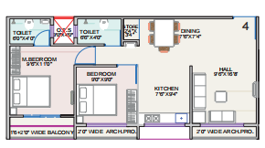
Floor Plane
Floor Plan Floor Plan Floor Plan Floor Plan Floor Plan Floor Plan

Features

Parking Parking


Distance key between facilities

School - 500m

Super Market - 2km




Share this project:

Write a review

Please log in to write review!




Contact